500
0
Architecture & Design
click on logo
Branding & Web Design
0
Skip to Content
Architecture& Design
Branding& Web-Design
About / Contact
Open Menu
Close Menu
Architecture& Design
Branding& Web-Design
About / Contact
Open Menu
Close Menu
Architecture& Design
Branding& Web-Design
About / Contact
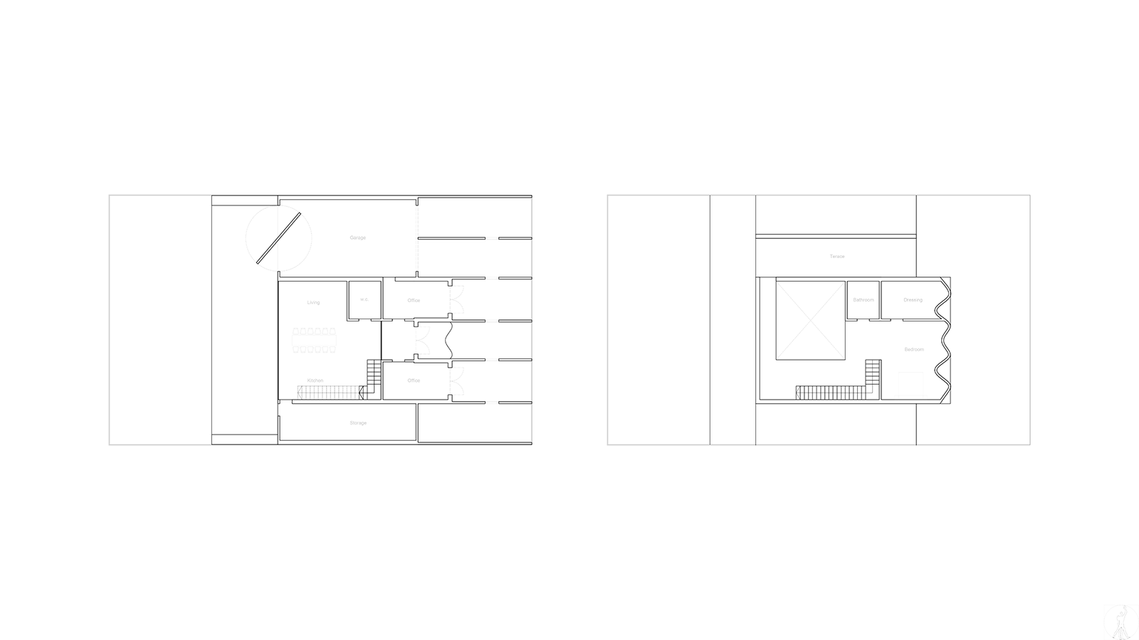
House for two | 2022 |
Corbeanca
Previous
Previous
Hippie Land House
Next
Next
Gherghina House